Last week our very own Lindsay Brungardt walked us through the pain points of her personal kitchen in Lenexa. If you missed that blog post check it out here. We know what isn’t working for her and her busy family so now we’re going to look at the changes the family wants to make and how our talented team will bring Lindsay’s vision to reality.
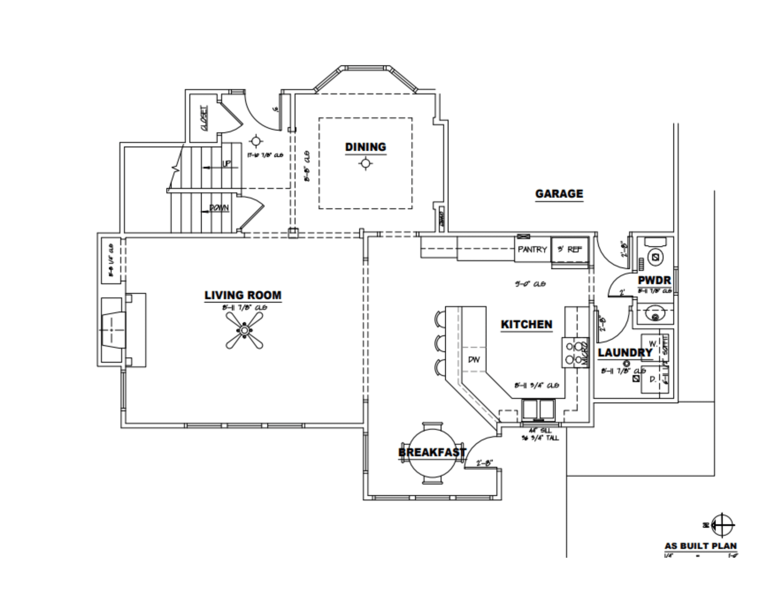
Existing Floor Plans
In the existing floor plans you can see the things Lindsay mentioned last week. The entry way space off the garage and into the home is small and crowded. The refrigerator sits right off the opening into the kitchen and blocks the flow of traffic to the laundry room, powder bath and garage if someone is opening the fridge. The peninsula blocks off the flow to the eating area and back door which is used frequently. The biggest problem with the existing floor plans is the lack of optimal flow for the family's daily use.

Existing floor plans for the main level of the home.

Close up of the existing floor plans for the main level of the home.
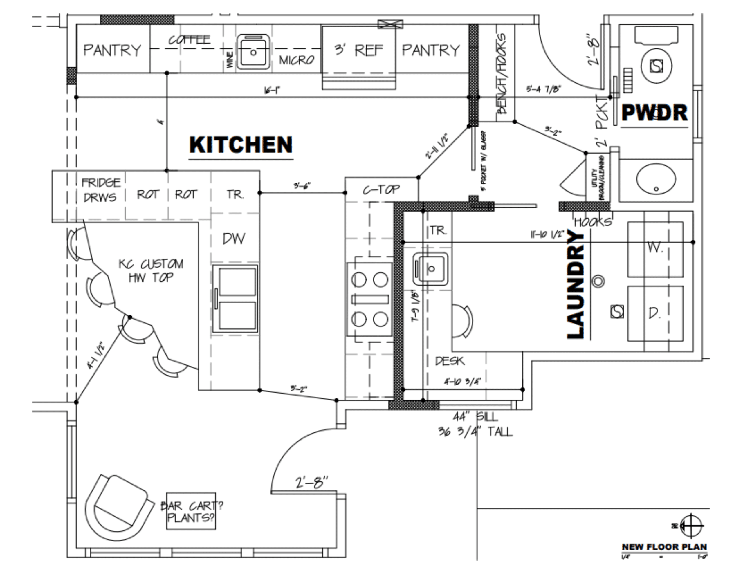
New Floor Plans
In the new floor plans, all of these issues are resolved! We have pushed the kitchen wall near the garage over a little giving us enough room to add a mudroom storage nook area to serve as a catch-all when coming in from the garage. We also reconfigured the kitchen and laundry room to make better use of the space. The laundry room will now be larger and include more storage options along with a built-in desk. The kitchen peninsula is gone, and a large island takes its place. This opens up space from the wall where the old kitchen sink was and creates a walkway to the backdoor area which will help with the flow to the backyard.

New floor plans for the main level of the home.

Close up of the new floor plans for the main level of the home highlighting the main areas we will be remodeling.
Renderings
A fun part of the design process that Lindsay is very familiar with is 3D renderings and drawings! This involves working with our architecture team to create the renderings of the new spaces in a project. It’s a great way to see it all come to life which helps ensure that the clients and designer like what they see, and everyone is on the same page.
Mudroom and Laundry Area

Mud room nook area off garage.

Mud room nook area off garage.

Laundry room with custom storage solutions.

Laundry room with custom storage solutions.
With this new set up Lindsay and her family will have a designated drop area for storing bags, backpacks, coats, shoes or even a spot to set down groceries in between trips to and from the car. The new laundry room space will also house a desk area with tons of custom storage. These spaces should work well with the way the family moves through the area.
The New Kitchen

View of kitchen from living room.

View of kitchen from back wall near back door.



In this new kitchen set up, there should be a natural flow of traffic with the large island that has a stunning custom live edge wood table top on the back of the island. Lindsay opted for Shiloh painted maple in the color black to add some interest for the island. The kitchen perimeter cabinets will be Shiloh stained white oak with accents of painted maple in the color beige. For the counters Noble Grey Lava Quartz will keep things fresh and sleek. Lindsay chose Daltile Panoramic Porcelain Diamond Mine Polished to serve as full height backsplash which will add subtle drama to the amazing space. There will be a mix of black and gold hardware in the kitchen.
Stay tuned as demo and construction take off in the coming weeks, you won’t want to miss watching this exciting transformation come to life! We’re also following along in real time on Instagram @remodelagain with a story highlight for Lindsay’s project. You can find all of the "Designer Turned Client" blog posts here.
