Part One: A Whole Home Lake of the Ozarks Remodel Begins
We’re kicking off an exciting new Lake of the Ozarks home remodel, and this one is going to be special.
Our clients, whose primary residence is in Omaha, recently became owners of their family lake home and are ready to transform it into a sleek, modern weekend and summer retreat. Together, we’re reimagining the entire space — creating a high-design, contemporary getaway that feels elevated, serene, and connected to the water.
This is Part One of the journey. Today, we’re unpacking the before: the existing home, what wasn’t working in the existing space, and the vision that will guide this whole home transformation. We’ll also share preliminary floor plans and 3D renderings so you can see exactly where we’re headed.
And trust us — this is one Lake of the Ozarks renovation you’ll want to follow from start to finish.

Table of Contents
Meet the Clients
Our clients live full-time in Omaha but enjoy spending weekends at the Lake of the Ozarks. When they inherited this property, they saw opportunity — not just to update a home, but to create a modern lakeside retreat that reflects how they truly want to live and entertain.
Their goals were clear:
- Create a sleek, contemporary lake house design
- Keep the palette neutral, calm, and earthy with a variety of textures
- Add personality without overwhelming the space
- Maximize and highlight the incredible lake views
- Improve layout and flow for hosting friends and family
Here are some of the photos they showed us in the early phases of design as inspiration.




Most importantly, they wanted the home to feel intentional — a place where they can unplug, recharge, and enjoy time on the water.
We are beyond excited for them and can't wait to bring you along for this whole home remodeling project.
The Existing Home: What Wasn’t Working (Video)
While the lake views are stunning, the interior did not match the vision our clients had in mind for their space.
Like many lake homes built during this era, the main living and kitchen area greet you as soon as you enter from the driveway or street side. Then, a flight of stairs leads you down to the lower level with bedrooms and full bathrooms. Down here, sliding glass doors open directly to ground or water level — and just a few more steps and a ramp take you down to the dock.
Although the layout made the most of the lake access, both levels felt dated and disconnected from the bright, inviting retreat our clients wanted. As a result, the entire home was ready for a thoughtful, cohesive facelift that would better reflect their style and elevate the everyday living experience.
Before Photos

Lake view from the lower-level deck

Lake view from the lower-level deck
Like many inherited older homes, the layout felt dated and compartmentalized. Finishes felt heavy and visually busy.





The first of two full bathrooms on the lower level

The second of two full bathrooms on the lower level
Overall, the home did not reflect the sleek, modern weekend escape our clients envisioned. Specifically:
- Finishes and materials felt dark and dated.
- Design details distracted from the lake views rather than enhancing them.
- Storage and functionality did not support weekend hosting.
Although the bones had potential, the home needed thoughtful redesign and strategic updates to unlock it.
That’s where we come in.
Kelly Summers Walks Through Existing Home Video
Photos are helpful, but sometimes you need more than a snapshot. A video lets designers walk you through the space, explain what’s happening where, and highlight the details that matter. Instead of guessing how everything connects, you hear the thinking behind the design and get a true lay of the land. That's what Kelly Summers does in the clip below.
The Vision: Modern, Sleek & Lakeside Calm
Now for the exciting part — the direction. This is where the team of Kelly Summers and Peter Schloegel come in, along with our incredible architecture team.
We are designing this Lake of the Ozarks whole home remodel around a clear design philosophy:
Let the lake speak.
Instead of competing with the views, we’re creating a neutral, refined backdrop that enhances them. Think:
- Clean architectural lines
- Sleek cabinetry and modern detailing
- Layered textures in calming neutrals
- Subtle personality woven through lighting, materials, and statement moments
- A cohesive, high-design aesthetic throughout the entire home
Long before construction begins, our design team is already hard at work. In fact, we start the design phase early in the remodeling process to ensure every detail is thoughtfully planned and clearly communicated. By the time demo day arrives, all renderings are finalized, plans are complete, and every selection has been carefully made.
For this project, Kelly worked closely with our clients to curate a palette of warm neutrals layered with black and brass hardware and fixtures. As a result, the space feels contemporary and sleek, yet calm and inviting. The contrast of finishes adds depth and sophistication, while the cohesive design ensures everything feels elevated rather than overwhelming.

We carried the same earthy neutrals throughout every space we touched to create a cohesive, intentional design from room to room. By repeating these warm tones, we ensured the entire home feels connected rather than segmented.
For the powder bath, Kelly presented inspiration that still honored the overall palette but introduced a bit more personality. Since our clients have a sweet pup, she chose a fun wallpaper that resembles their dog . This adds a playful, personal touch while still complementing the home’s contemporary aesthetic.

The overall result will feel contemporary and sophisticated — yet relaxed enough for barefoot weekends and casual summer get-togethers.
The goal is for the space to feel sleek but not overly trendy. It will feel timeless, curated, and intentional.
High-Level Design Plans: Reworking the Flow
To achieve the vision, we needed to rework parts of the existing floor plan.
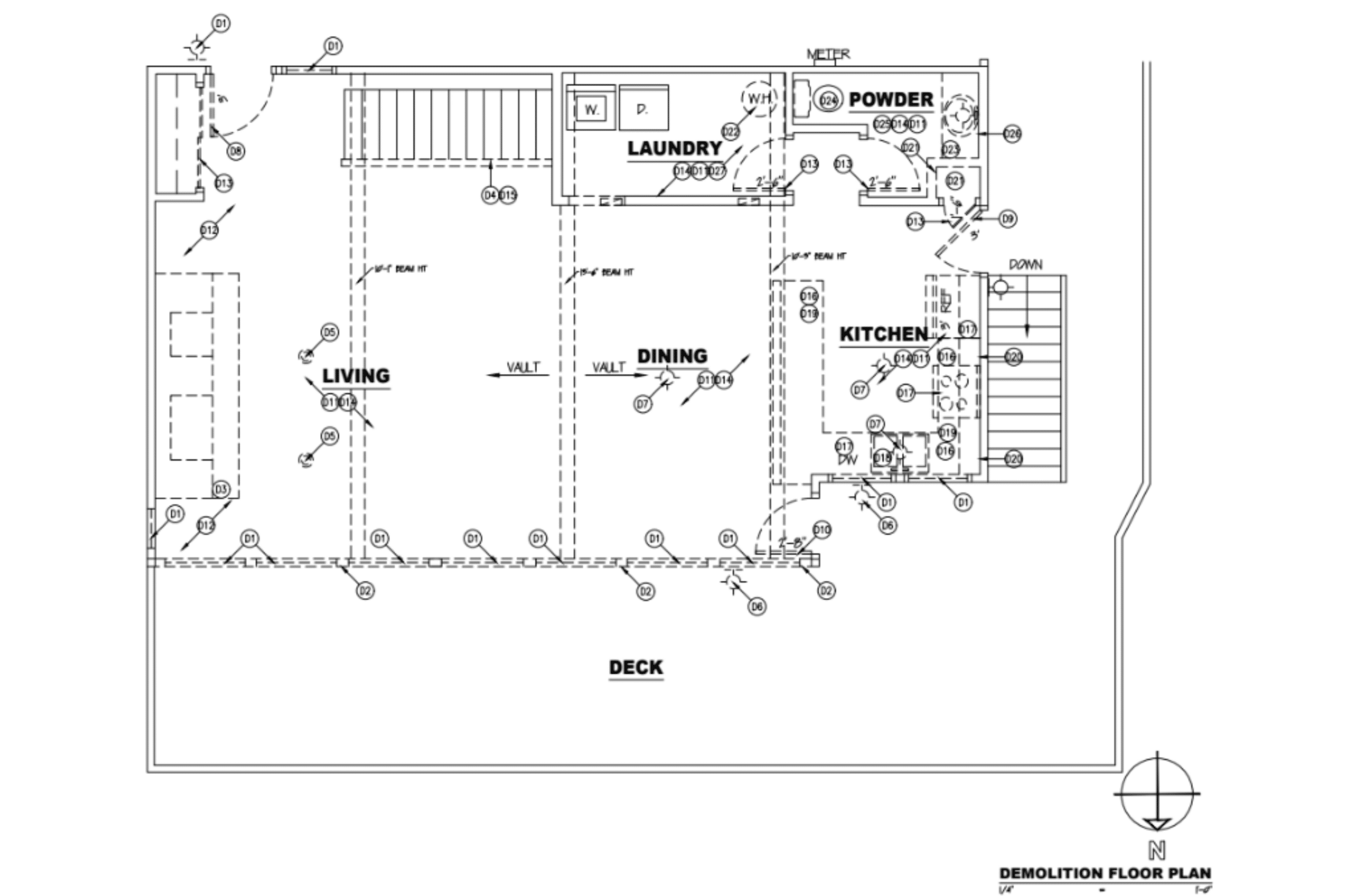
Before Plans

The existing layout separated key living spaces and interrupted natural sightlines toward the lake. Traffic flow felt awkward, and entertaining would have required guests to move through tight or disconnected areas, especially in the congested kitchen.
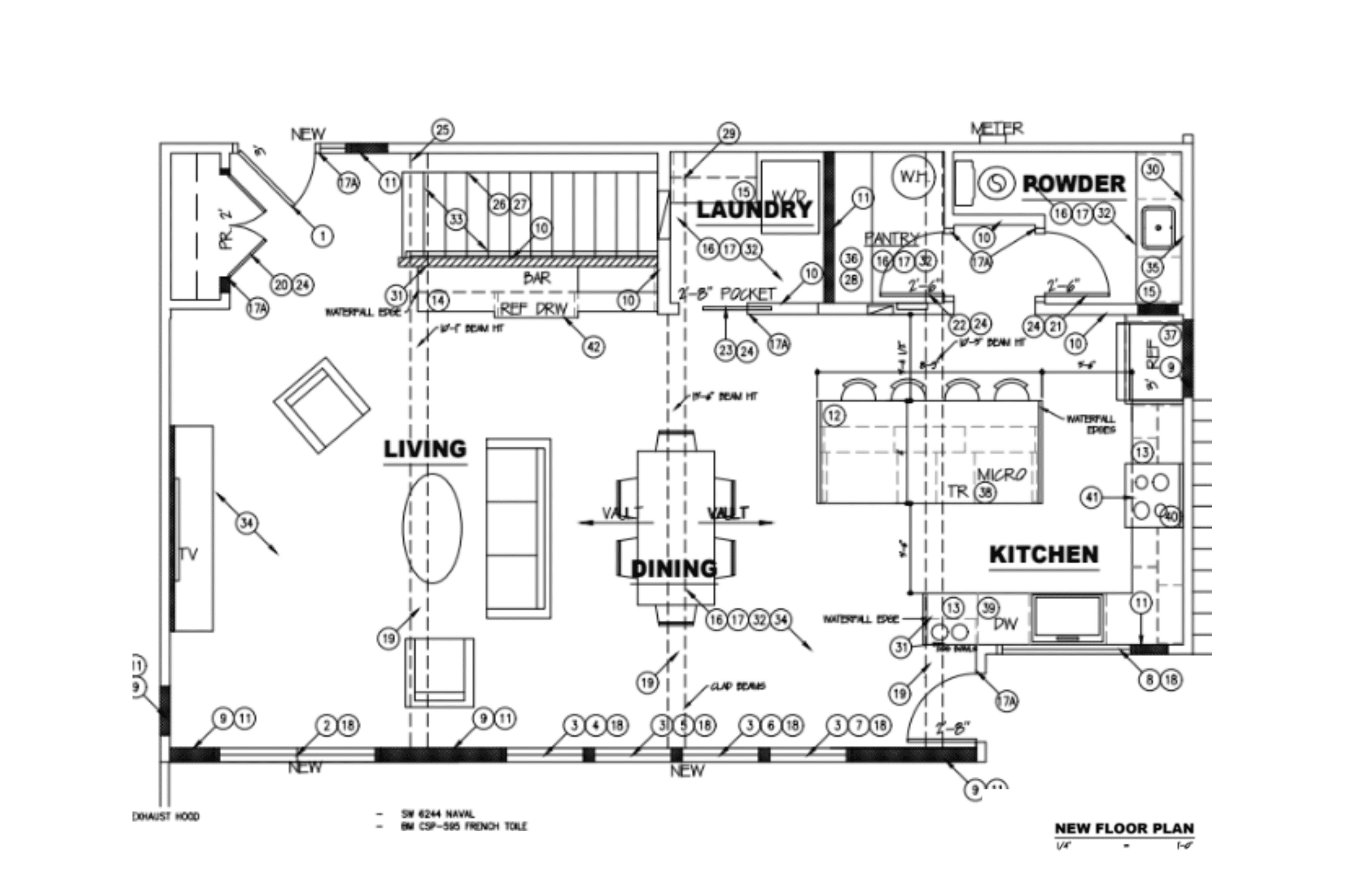
New Floor Plans

With our new framing plan, we immediately open up the kitchen and create space for a large central island, dramatically improving flow and functionality. As a result, the layout feels more intentional and better suited for gathering, entertaining, and everyday living.
In addition, we are reworking the original laundry room storage closet to maximize efficiency. Instead of leaving it underutilized, we’re dividing the space into two purposeful areas. One side will become a dedicated laundry room, complete with a sliding pocket door for convenience and clean sightlines. Meanwhile, the other side will transform into a true pantry, giving the kitchen the proper storage it previously lacked.
By reallocating square footage this way, we improve both circulation and organization — without adding onto the home.

The new floor plan improves connection and clarity. We are:
- Opening key walls to improve sightlines and natural light
- Reconfiguring spaces to support hosting and weekend living
- Modernizing layouts for both aesthetics and function
3D Renderings
Our 3D renderings showcase the future state — streamlined finishes, intentional lighting, and a cohesive design language throughout the home.




Even at this early stage, the transformation is already clear.
What’s Next: The Transformation Begins
As Project Director Keith Brockman brings this remodel to life and demolition begins, we’ll continue sharing behind-the-scenes progress — from framing and drywall to electrical, plumbing, cabinetry, flooring, paint, and final finishes.
We’ll document every major milestone in this whole home Lake of the Ozarks renovation:
- Demo day
- Structural changes
- Rough-ins
- Drywall phase
- Cabinet and flooring installation
- Final finishing details
And of course, we’ll wrap everything up with a full reveal you won’t want to miss.
Follow Along
We’ll be sharing regular updates on Instagram stories along with detailed blog posts as this project unfolds. This is more than a remodel — it’s a complete lakeside revival.
If you love modern lake house design, thoughtful floor plan transformations, and high-design details, make sure to check back in.
This Lake of the Ozarks home remodel is just getting started — and we’re taking you along every step of the way.
Stay tuned for Part Two.
If you're looking for more home design inspiration, check out our galleries here.
Ready to make your lake home a dream escape? Contact us today!
