This Prairie Village basement transformation turned an unfinished lower level into a warm, inviting, and fully functional extension of the home. With a dedicated laundry room, a comfortable guest suite, a full bath full of character, and a cozy hangout space, this remodel delivers both beauty and practicality for everyday living and easy hosting.

Table of Contents
Before: An Unfinished Basement with Daily Use
Before our team stepped in, this basement was completely unfinished—exposed walls, concrete floors, and utility spaces. Despite the lack of comfort, the homeowners found themselves downstairs often because their washer and dryer lived in the basement. With no designated areas for storage, laundry, or entertaining, the space felt more like a necessity than a part of their home.


Client Wishlist
The clients didn’t mind the laundry being on the lower level, but they wanted it to feel intentional. Their main goals were:
- A dedicated laundry room with ample storage—something that functioned almost like a mudroom
- A comfortable guest suite for family and friends to stay
- A fully equipped full bath with personality
- A cozy hangout space that wasn’t just functional, but stylish, fun, and reflective of their home’s character
They wanted the basement to feel like a true extension of their living space—not just a place they had to enter, but one they could enjoy.
The Vision & Design Details
Our design centered on transforming the basement into a warm, lively, and cohesive environment connected to the rest of the home. We introduced rich colors, warm wood tones, patterned flooring, and playful textures to bring life into each zone.
The laundry room features custom cabinetry in a light sage green, paired with a black honed Negresco granite and patterned Kenzzi Taa Luxury Vinyl Flooring, that elevates the everyday.
For the bathroom, the statement floral wallpaper combined with marble looking large format tile, Taj Mahala Quartzite, and brass accents adds sophistication and unexpected drama.
The lounge area ties everything together with built-in shelving in that same light green shade, comfortable seating, and layered textures—perfect for relaxing or hosting guests.
Plans & 3D Renderings
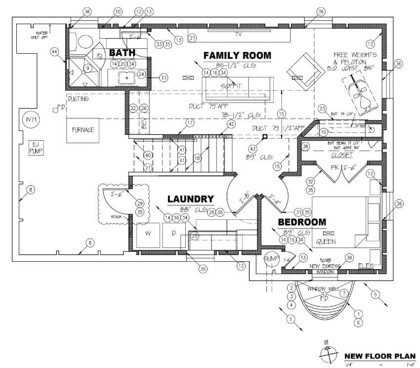
Before construction began, we developed detailed plans and renderings to help the clients visualize how the unfinished space would be transformed. This included:
- Framing out a bedroom with an egress window
- Creating space for a full bath
- Carving out a functional laundry and storage room
- Designing a main living area that felt open and connected
- Ensuring each zone flowed seamlessly while maintaining its own personality

An unfinished basement is like a blank canvas! We had room to be creative and make sure our clients got everything on their list, while still including an unfinished area for storage.


3D renderings are a fun way to help clients visualize what their new space will look like.
Remodeling Process & Problem-Solving
Turning an unfinished basement into a polished living space always comes with challenges, and this project was no different. Our team navigated:
- Low ceilings, which required thoughtful lighting and fixture choices
- Mechanical and plumbing layout constraints, solved through creative rerouting and soffit placement
- Ensuring adequate insulation and comfort, turning the formerly cold space into a year-round cozy retreat
- Incorporating built-ins, trim, and custom cabinetry that elevated the design while maximizing function
Every detail was intentional—from natural light optimization to storage placement—to make the basement feel effortless and welcoming.


First, we framed out the new spaces and then insulated everything to ensure the basement will be comfortable and energy efficient.


It's common for lower levels and older homes to have uneven floors. To fix this we use a self-leveling compound that cures in just a few hours and dries solid to prepare the floors for tile, wood, or whatever flooring clients choose.

Once the floors were level, we added trim and installed the built-in shelves for the living area.


Then it was time to pick a stain. Oh, the choices! We tested a few options on a small patch for our clients to see which one they liked best. Then we did a few coats of stain and installed cabinetry.


In the bathroom, we laid the same large format porcelain tile on the floor and shower walls. We installed the cabinetry in a deep iron ore shade, then added the statement floral wallpaper. To tie it all together we installed brass hardware and sconces along with plumbing fixtures.



In the main living area, we painted the shelves the same shade of green from the laundry room cabinetry. This helped add to that cohesive look our clients wanted for their lower level.



Then we installed the counter tops in the wet bar area, laundry room and bathroom. We also laid the laundry room floor tile which added some interest to the space.



The Final Reveal
The finished lower level is a beautiful blend of comfort, style, and function. The living area brings a warm, lounge-like atmosphere perfect for movie night, hosting friends, or everyday relaxing. It elevates the basement into a true extension of the home.

The beverage area has a fridge, floating wood shelves, and a drawer stack for storage. This space is highly functional but also serves as a focal point in the living area.

The laundry room now offers plenty of storage, folding space, and bright clean aesthetic.


The bathroom brings the drama, (in the best way)! The space stands out with its bold wallpaper, brass fixtures, and luxurious finishes.


The guest suite feels cozy and bright with tons of natural light.

What was once unfinished and underused has now become a favorite part of the home for our clients.
Feeling Inspired?
Whether it’s a lower-level renovation, a kitchen remodel, or a whole-home update, our team is here to bring your vision to life. Let’s create a space you truly love to live in, contact us to start the conversation today!
If you're looking for more lower-level design inspiration, check out our basement gallery.
