East 65th Street - Kansas City Kitchen
Project by Brenda Axman
Brookside Kitchen Renovation in Kansas City
This Brookside kitchen renovation reimagined the home’s layout to create a brighter, more functional space for everyday living. A former bedroom was transformed into a new dining room, while the garage entry was relocated to open up the kitchen and improve flow throughout the main level.
Designer Brenda Axman centered the new kitchen around a farmhouse sink beneath the windows, bringing in natural light and creating a welcoming focal point. Soft blue cabinetry, classic white subway tile, and stainless appliances keep the space feeling fresh while complementing the character of the historic Kansas City home.
Project Details
Project Details: Brookside, Kansas City, MO
Project Type: Kitchen Renovation
Designer: Brenda Axman
Scope of Work:
- Updated layout to improve function and flow
- Relocated garage entry for improved circulation
- Converted bedroom into a dedicated dining room
- Full kitchen renovation with new cabinetry and finishes
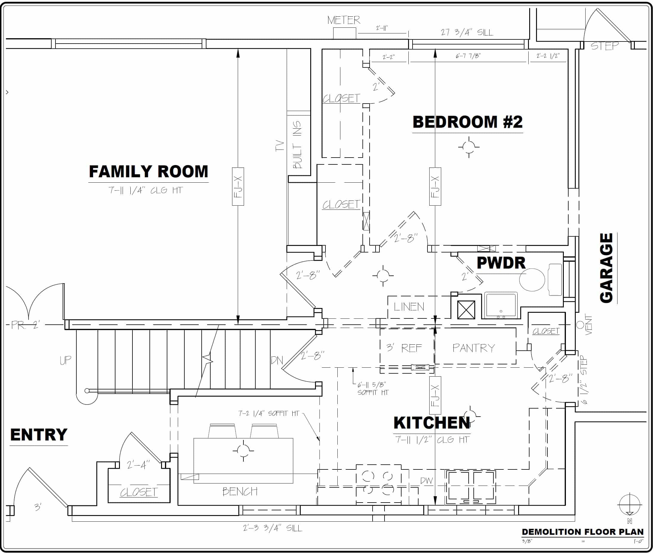
Before the Renovation
Before the renovation, the kitchen felt tight and cut off from the rest of the main level. The garage entry ran directly through the space, creating congestion and limiting how the kitchen could function.
The layout also included a nearby bedroom that prevented the kitchen from expanding. While the home had great character, the kitchen simply wasn’t keeping up with how the homeowners wanted to live and gather.



Reworking the Layout for Better Flow
Like many older Brookside homes, the original kitchen layout wasn’t designed for how families use their homes today. The garage entry cut through the kitchen and limited how the space could function.
The renovation focused on reworking the layout, relocating the garage entry, and converting the bedroom into a dining room. These changes opened up the kitchen and created a much more comfortable flow through the home.

Before

After
Turning a Bedroom Into a Dining Room
The home had enough bedrooms for the family upstairs, what it didn't have was dining space. The main floor bedroom provided the opportunity to rethink the layout. By converting that space into a dining room, the kitchen gained room to expand and the home gained a dedicated space for meals and gathering. The change improved how the entire main level functions.
Design Highlights
- Soft blue cabinetry that adds color without overwhelming the space
- White subway tile backsplash for a timeless look
- Farmhouse sink positioned beneath the windows
- Warm wood floors that connect the kitchen to the rest of the home
Kitchen Renovation in Brookside Kansas City
Brookside is known for its beautiful historic homes, and renovations like this one show how thoughtful layout changes can improve how those homes live day to day. By relocating the garage entry and converting a bedroom into a dining room, this kitchen renovation created a more open and functional space while respecting the character of the original home.
Planning your own Brookside kitchen renovation? Learn more about our Kansas City kitchen remodeling services or Contact Us to start your project.
More Kansas City Kitchen Renovations
Share this





