An unfinished basement is full of possibilities, but for many homeowners, it's also a daunting blank slate. Our recent clients in Riverside, Missouri, had a vision for their unused space: a multi-functional area that would serve as a go-to spot for the whole family and a welcoming destination for entertaining.
This project was a dream to work on because it was more than just a renovation; it was about creating a new heart for their home—a place for movie nights, hosting friends, and making memories for years to come.

The Vision: A Basement for Everyone
Our clients, a family with young kids, wanted to maximize every square foot of their lower level. Their wish list was comprehensive:
- A Cozy Hangout Spot: A comfortable space with a cool, modern feel, perfect for watching the big game (you know which one) and hosting friends and family.
- A Modern Kitchen & Dining Area: A functional space for preparing snacks and drinks without having to run upstairs, making entertaining seamless.
- A Dedicated Home Office: A quiet, professional corner for remote work or managing family schedules.
- The Ultimate Playroom: A designated zone where the kids could play and be creative, and most importantly, a space that could be easily contained behind a closed door when guests arrived.
With this clear vision, Schloegel designers Kelly Summers and Lindsay Brungardt were ready to get to work.
The Before: A Space with Potential
Stepping into the basement, we saw a totally blank canvas. It was a completely raw, unfinished space with exposed framing and electrical. But we saw more than just concrete and ductwork. We saw a future family room, a future office, and a future playroom. The lack of existing walls or features was actually a great advantage—it allowed us to design the layout from scratch to perfectly match the family's needs without having to demolish anything first.


Plans
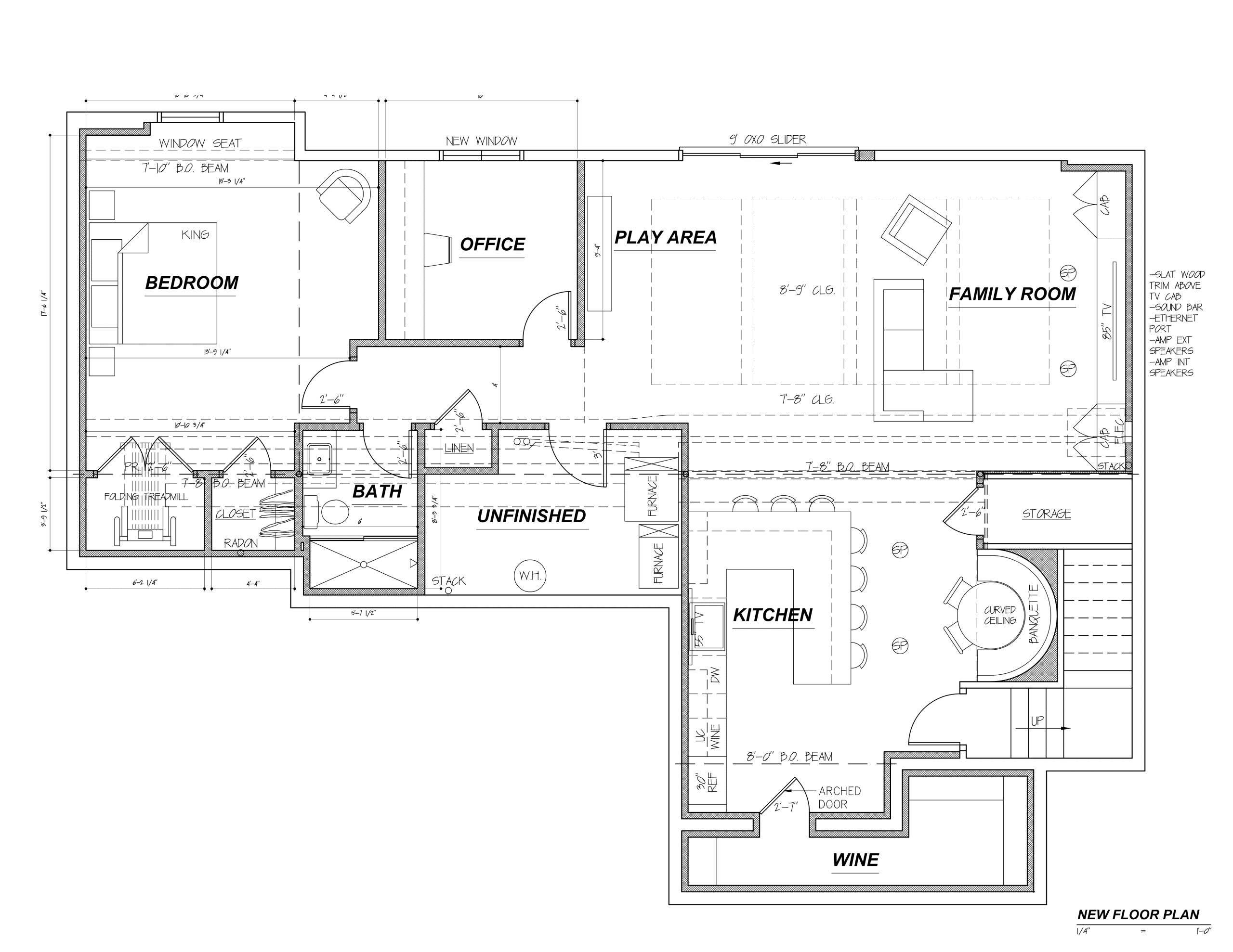
We were lucky to work with a blank slate since the space was completely unfinished. Our architecture team came up with a few floor plan options. We opted for the one below on the right but instead, our clients decided to use the back area marked "bedroom" as a dedicated play area for the kids. This way the toys and clutter could be concealed behind a door when hosting, without having to pick up all the toys.

"Before" or as built floor plans of the unfinished basement

"After" floor plans, a variation of the final new floor plans
Design Details and Renderings
The key to a cozy basement is selecting finishes that add warmth and personality. For this particular project, we worked with our clients to choose an earth toned and cozy color palette. Think warm golds, stained wood, the perfect shade of green, and rich browns. This combination of tones immediately makes the space feel calm and cozy but still full of character.

Design details like floor plans, 3D renderings, and construction sets are a crucial part of the remodeling process. They help ensure everyone—from the client and our designer to the production team on the job site—is on the same page and working toward the same vision.
We typically create several rendering options to help clients visualize the potential of their space. This might involve showing one layout that reclaims some dead space for a small home office and another that turns it into a home gym. For a bathroom remodel, we could present one option with a smaller footprint to maximize space elsewhere and another that expands the bathroom to include a large walk-in shower and a separate tub.
These detailed drawings aren't just for floor plans. With 3D renderings, we can change finishes, colors, and textures to show you what the space will truly look like. This allows you to explore different looks and make confident decisions before any construction begins.

View from family room into kitchen and dining area.

View from kitchen into dining and family room.
Above are two different views of an option we came up with for our clients. We ended up changing the peninsula to be an island to create more of an open concept easy flowing space. Once the design details were finalized, we could start swinging hammers.
Phase 1: Framing the Vision
The first step was bringing the architectural drawings to life. The remodel was directed by Jeff Penrose and the day to day was managed by Doug Schauerman. The team began with framing, carefully constructing the walls that would define each new area—the main living space, the kitchen, the office, the playroom, and the bathroom.


We used a custom kit to frame the rounded dining alcove to get the perfect shape.

Once the framing was complete, our electricians and plumbers were able to work seamlessly on the rough-ins. New wiring was run for lighting, outlets, and the home theater setup. Plumbing was installed for the kitchen sink and the new bathroom (a critical addition for any basement remodel!)



With all the new plumbing and electrical elements in place, we turned our attention to the foundation. Our team prepared the floors by patching and leveling the subfloor, a crucial step to ensure the upcoming tile installation would be nothing short of perfect. It's the attention to detail that makes all the difference!

After the framing was complete, we went in with insulation.


Phase 2: Building Out the Details
With the bones of the space in place, it was time to add the finishing layers. We hung drywall over the insulation to create the smooth, finished walls and ceilings. After a few rounds of mud and sanding, this is where the basement began to feel like a livable space.
To create the ultimate cozy dining nook, we designed a custom round alcove to seamlessly hug a built-in banquette booth. It's a perfect example of how a custom vision can transform an ordinary corner or wasted space into a unique and inviting destination.


As for the bathroom, we created a spacious shower with large format wall tile and a fun patterned floor tile for the rest of the space.


Next came the flooring. We installed a Beige European Oak hardwood throughout the main living areas for a seamless, modern look, with a soft, neutral carpet added in the main living space, office and playroom for warmth and comfort.



Then to finish things off we installed the trim and baseboards, adding the polished details that tie a room together. The custom green cabinetry for the kitchen and living room storage area was then installed, creating a perfect blend of style and function.


A neutral stained wood vanity was installed in the bathroom and soon after the white quartz countertops went in.



The final fixtures were then added, including the golden brass pulls and knobs that pop against the cabinetry, the unique light fixtures over the island and dining nook, and the sink faucet.
The Final Touches: From House to Home
This Riverside basement is officially ready for its first family game night! The results from this remodel are not only beautiful but also incredibly functional—a space where this family can relax, entertain, and grow for years to come.

In a space designed for relaxation and entertainment, clutter can be a major distraction. That's why we integrated several smart storage options for our clients. A hidden storage door into the paneled accent wall is a discreet way to seamlessly blend the design elements while, keeping media components, gaming consoles, and other electronics neatly tucked away when not in use. It's the perfect example of how a custom solution can elevate both the style and the functionality of a room.


Designed for both style and daily life, this kitchen and dining alcove are ready for family use. The space is cozy, inviting, and totally functional, making it the perfect hub for everything from casual hangouts to larger gatherings.




The bathroom came together beautifully. It's the perfect blend of neutral tones with just the right amount of character and interest, creating a space that feels both calm and unique.


This serene office is a peaceful spot for getting work done. The thoughtful layout provides ample space for a large desk and storage, while the window floods the room with natural light. Located just across from the new bathroom, and adjacent the kitchen, this space is ready for everything from remote work to quiet time planning.

Let's be real, a home where the kids' imagination can run wild! This dedicated play space is ready for all the fun but designed to keep the toys organized with amazing built-in closet storage. Plus, the natural light from the windows makes it a bright and cheerful spot for playtime (unlike what you'd typically find in a basement play space). We love a space that can grow with the family—this versatile room has plenty of space to become a comfortable guest bedroom as the kids grow.


Thinking about what your own basement could become? We're here to help you turn that blank slate into a space you'll love to live in. Check out our basement gallery for some inspiration and contact us to learn how we can make your vision come to life!
Follow @remodelagain on Instagram for exciting project updates!
